Transformation d’une grange à Payerne

Projet & Réalisation

Le Centre social protestant fait appel à MASKIN pour transformer une grange protégée au patrimoine, abritant l’un de ses espaces de vente d’articles de seconde main ; le Galetas de Payerne.

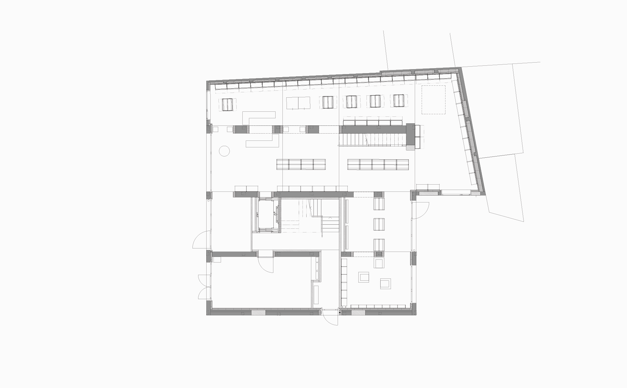
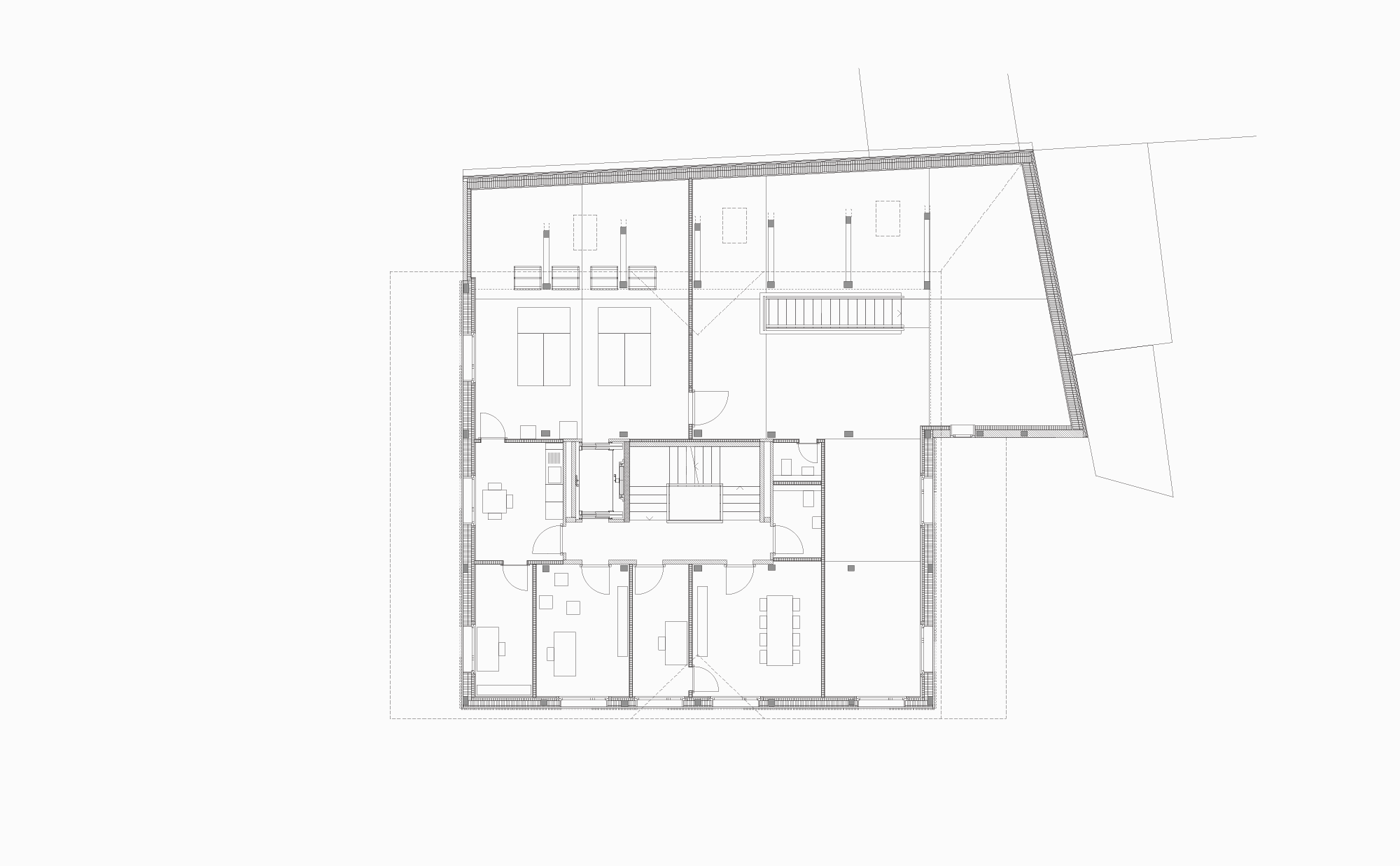
L’état du bâtiment imposait une intervention conséquente. Le volume, très imposant, était mal exploité. Après l’assainissement du bâtiment et un réaménagement complet, il a pu accueillir, en plus de l’espace de vente déployé sur deux niveaux, des espaces de consultation et deux appartements sous les combles.

Insérée entre les poteaux de la charpente existante conservée, une nouvelle cage d’escalier centrale organise le projet et permet de gérer les différents flux. L’entrée des appartements et des consultations se situe sur la façade sud, indépendamment de la surface de vente. Le magasin dispose d’une entrée du côté de la route, sur la façade principale qui retrouve son statut.

Essentiellement construit en bois, le bâtiment transformé conserve son caractère authentique. Le choix des matériaux s’inscrit dans une même logique ; mettre la structure existante du bâtiment en valeur et assumer des matériaux bruts. Un bâtiment ancien renaît dans une mixité d’affectations liée à son temps, dans le faubourg urbain d’une ville en pleine évolution.